2012年造价工程师《案例分析》模拟试卷1

0
收藏   分享
  • 卷面总分:140分
  • 试卷类型:模拟考试
  • 测试费用:免费
  • 答案解析:是
  • 练习次数:44次
  • 作答时间:240分钟
试卷简介
本套试卷总分:140分;共有2大题;测试时间:240分钟
试卷预览
1

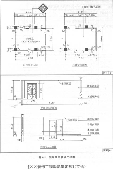
某经理室装修工程如图6-1所示。间壁轻隔墙厚120mm,承重墙厚240mm。经理室内 装修做法详见表6-1和表6-2“项目名称”中所列的内容,预算价格见表6-3。预算价格见表6-3。踢脚、墙面门口侧边的工程量不计算,柱面与墙面踢脚做法相同,柱装饰面层厚度50mm,消耗量定额是按《建设工程工程量清单计价规范》的计算规则编制的。 

 

工作内容 

1.块料楼地面:清理基层、找平层、面层,灌缝擦缝,清理净面等过程。 

2.木质踢脚线:清理基层、安装基层、面层,钉木线,打磨净面,油漆等过程。 

3.柱(梁)饰面:制作、安装木龙骨,粘钉基层,刷防火漆,钉面层等过程。 

4.顶棚吊顶:吊件加工安装,轻钢龙骨安装,整体调整等过程。 

 

《××装饰工程消耗量定额》(节选)工作内容 

1.石膏板顶棚:安装面层等过程。 

2.木材面清漆:磨砂纸、润油粉、刮腻子、油色、清漆落四遍、磨退出亮等过程。 

3.乳胶漆:填补裂缝、满刮腻子二遍、磨砂纸、刷乳胶漆等过程。 

4.墙纸裱糊:刮腻子、打磨、刷胶、裱糊等过程。 

 

问题 

1.根据图6-1所示内容和表6—4“分部分项工程量清单”所列项目,依据《建设工程工程量清单计价规范》附录B的计算规则,计算经理室内装修工程量。范围包括:A、C两个立面,柱面(Z1、Z2、Z3)地面,踢脚线,顶棚。将相应的计量单位、计算式及计算结果填入表6—4“分部分项工程量清单”的相应栏目中。 

 

 

2.根据表6—1所列经理室内装修做法,以及《XX装饰工程消耗量定额》(节选)的消耗量、 

预算价格,按《建设工程工程量清单计价规范》中综合单价的内容要求,编制表6-5“分部分项工程量清单综合单价分析表”。管理费按人工费的70%、利润按人工费的50%计算。(计算结果均保留两位小数)

1

1.某办公楼卫生问给水排水系统工程设计,如图6—1所示。 

给水管道系统及卫生器具有关分部分项工程量清单项目的统一编码,见表6-1。 

 

 

说明: 

1.图示为某办公楼卫生问,共三层,层高为3m,图中平面尺寸以mm计,标高均以m计。墙体厚度为240mm。 

2.给水管道均为镀锌钢管,螺纹连接,给水管道与墙体的中心距离为200mm。 

3.卫生器具全部为明装,安装要求均符合《全国统一安装工程预算定额》所指定标准图的要求,给水管道工程量计算至与大便器,小便器、洗面盆支管连接处止。其安装方式为:蹲式大便器为手压阀冲洗;挂式小便器为延时自闭式冲洗阀;洗脸盆为普通冷水嘴;混凝土拖布池为500×600落地式安装,普通水龙头,排水地漏带水封;立管检查口设在一、三层排水立管上,距地面0.5m处。 

4.给水排水管道穿外墙均采用防水钢套管,穿内墙及楼板均采用普通钢套管。 

5.给水排水管道安装完毕,按规范进行消毒、冲洗、水压试验和试漏。 

表6-1有关分部分项工程量清单项目的统一编码 

 

2.某单位参与投标一碳钢设备制作安装项目,该设备净重1000kg,其中:没备筒体部分净重750kg,封头、法兰等净重为250kg。该单位根据类似设备制作安装资料确定本设备制作安装有关数据如下: 

(1)设备简体制作安装钢材损耗率为8%,封头、法兰等钢材损耗率为50%。钢材平均价格为6000元/t。其他辅助材料费为2140元。 

(2)基本用工:基本工作时间为100小时,辅助工作时间为24小时,准备与结束工作时间为20小时,其他必须耗用时间为工作延续时间的10%。其他用工(包括超运距和辅助用工)为5个工日。人工幅度差为12%。综合工日单价为50元。 

(3)施工机械使用费为2200元。 

(4)企业管理费、利润分别按人工费的60%、40%计算。 

问题 

1.根据图6—1所示,按照《建设工程工程量清单计价规范》(GB50500--2008)及其有关规定,完成以下内容: 

(1)计算出所有给水管道的清单工程量,并写出其计算过程; 

(2)编列出给水管道系统及卫生器具的分部分项工程量清单项目,相关数据填入“分部分项工程量清单表”内。 

2.根据背景2的数据,计算碳钢设备制作安装工程的以下内容,并写出其计算过程: 

(1)计算该设备制作安装需要的钢材、钢材综合损耗率、材料费用。 

(2)计算该设备制作安装的时间定额(基本用工),该台设备制作安装企业所消耗工日数量从工费用。 

(3)计算出该设备制作安装的工程量清单综合单价。 

(计算结果均保留两位小数)

1

某土建工程项目确定采用公开招标的方式招标,造价工程师测算确定该工程标底为4000万元,定额工期为540天。在本工程招标的资格预审办法中规定投标单位应满足以下条件:①取得营业执照的建筑施工企业法人:②二级以上施工企业;③有两项以上同类工程的施工经验;④本专业系统隶属企业;⑤近三年内没有违约被起诉历史;⑥技术、管理人员满足工程施工要求;⑦技术装备满足工程施工要求;⑧具有不少于合同价20%的可为业主垫支的资金。经招标小组研究后确定采用综合评分法评标,评分方法及原则如下。 

1.“投标报价”满分为100分,按如下两个方面评分: 

(1)报价与标底的偏差程度70分,按表3—1标准评分; 

表3—1“投标报价”评分标准 

 

(2)报价费用组成的合理性30分,评分结果见表3—2。 

2.“施工组织与管理能力”满分为100分,其中工期40分,按以下方法评定:投标人所报工期比定额工期提前30天及30天以上者为满分,以比定额工期提前30天为准,每增加1天,扣减1分。其他项目评分结果见表3—2。 

3.“业绩与信誉”满分为100分,评分结果见表3—2。评标方法中还规定,“投标报价”、“施工组织与管理能力”和“业绩与信誉”三方面的得分值均不得低于60分,低于60分者淘汰。对以上三方面进行综合评分时,投标报价的权重为0.5,施工组织与管理能力的权重为0.3,业绩与信誉的权重为0.2。,共有A、B、C、D、E5家单位参加投标,其中C投标单位在投标截止目前1天,采取突然降价方法,将直接费用3290万元降到了3230万元,并相应地调整了部分费率:其他直接费费率4.10%,现场经费费率5.63%,间接费费率4.39%.利润率3.93%,税率3.51%。C单位根据以上数据进行了报价(取整到10万元),并确定了工期为520天。开标后,评标组对5家投标单位进行了评审,部分结果见表3-2。 

 

已知其余4家投标单位报价和工期见表3-3。 

表3—34家投标单位报价和工期表 

 

问题 

1.资质预审办法中规定的投标单位满足的条件哪几项是正确的?哪几项不正确?

2.C投标单位的投标报价是多少万元?

3.列式计算各投标单位报价的得分值。 

4.列式计算各投标单位工期的得分值。 

5.按综合评分法确定中标单位。 

(计算结果保留两位小数)

1

某建设项目施工合同2月1日签订,合同总价6000万元,合同工期为6个月,双方约定3月1日正式开工。 

合同中规定: 

(1)预付款为合同总价的30%,工程预付款应从未施工工程尚需主要材料及构配件价值相当于工程预付款数额时起扣,每月以抵充工程款方式陆续收回(主要材料及设备费比重为60%)。 

(2)质量保修金为合同总价的3%,从每月承包商取得工程款中按3%比例扣留。保修期满后,保修金剩余部分退还承包商。 

(3)当月承包商实际完成工程量少于计划工程量10%以上,则当月实际工程款的5%扣留不予支取,待竣工清算时还回工程款,计算规则不变。 

(4)当月承包商实际完成工程量超出计划工程量10%以上的,超出部分按原约定价格的90%计算。 

(5)每月实际完成工程款少于900万元时,业主方不予支付,转至累计数超出时再予支付。 

(6)当物价指数超出2月份物价指数5%以上时,当月应结工程款应采用动态调值公式: 

P=PO×(0.25+0.15A/AO+0.60B/BO),式中P。为按2月份物价水平测定的当月实际工程款,0.15为人工费在合同总价中所占比重,0.60为材料费在合同总价中所占比重。人工费、材料费上涨均超过5%时调值。物价指数与各日工程款数据见表5-1。 

(7)工期延误1天或提前1天应支付误工费或赶工费1万元。 

施工过程中出现如下事件(下列事件发生部位均为关键工序)。 

事件1:预付款延期支付1个月(银行贷款年利率为12%)。 

事件2:4月份施工单位采取防雨措施增加费用3万元。月中施工机械故障延误工期1天,费用损失1万元。 

事件3:5月份外部供水管道断裂停水2天,施工停止,造成损失3万元。 

事件4:6月份施工单位为赶在雨期到来之前完工,经甲方同意采取措施加快进度,增加赶工措施费6万元。 

事件5:3、4月每月施工方均使用甲方提供的特殊材料20万元。 

事件6:7月份业主方提出施工中必须采用乙方的特殊专利技术施工以保证工程质量,发生费用10万元。 

 

注:2月份人工费指数与材料费指数为100。 问题 

根据上述背景材料按月份写出各月份的实际结算过程。

1

某化工厂内新建办公试验楼集中空调通风系统安装工程.如图6~1所示。 有关条件如下: 

 

 

 

注:1.每10m2通风管道制安工程量耗用11.38m2镀锌钢板; 

2.每10m2通风管道制安中,风管法兰加固框吊托支架耗用钢材按52.00kg计,其中施工损耗为4%; 

3.每100kg风管、法兰、加固框、吊托支架利油工程量,刷防锈漆两遍耗用防锈漆2.5kg。 

3.管理费、利润分别按人工费的55%、45%计。 

问题 

1.根据《建设工程工程量清单计价规范》的规定,编列出该工程的分部分项工程量清单项 

目,将相关内容填入表6-3中,并在表6-3的下面列式计算三种通风管道的工程量。 

 

(1)矩形风管500×300的工程量计算式: 

(2)渐缩风管500×300/250×200的工程量计算式: 

(3)圆形风管声250的工程量计算式: 

2.假设矩形风管500×300的工程量为40m2,依据《建设工程工程量清单计价规范》的规定计算矩形风管500×300的工程量清单综合单价,将相关数据内容填入表6—4中,并在表6—4

下面列式计算所列项目的工程量或耗用量。 

(计算结果均保留两位小数)

表6-4分部分项工程量清单综合单价计算表 

工程名称:(略)计量单位:m2

项目编码:工程数量:40

项目名称:综合单价:元 

 

(1)该项镀锌钢板耗用量的计算式: 

(2)该项风管检查孔工程量的计算式: 

(3)该项风管法兰、加固框、吊托支架刷油工程量的计算式: 

(4)该项风管法兰、加固框、吊托支架刷油时,防锈漆耗用量的计算式